AVAILABLE HOME PLAN
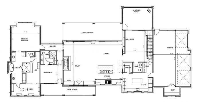
This stunning Brookview Builders modern farm house design is 4,355 square feet and includes 5 bedrooms and 4.5 baths.
Includes:
- Architectural plans
- Professional interior designer plans, including selections for finishes throughout.
- 3d CAD renderings


















